Έργο
ΚΤΗΡΙΑ ΚΟΙΝΗΣ ΧΡΗΣΗΣ
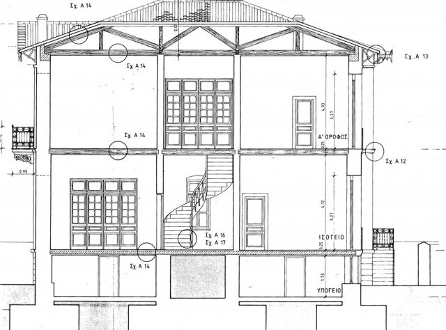
ΑΠΟΚΑΤΑΣΤΑΣΗ ΝΕΟΚΛΑΣΙΚΟΥ ΚΤΗΡΙΟΥ ΔΗΜΑΡΧΕΙΟΥ ΜΕΣΟΛΟΓΓΙΟΥ
Join
William Hill Poker
nad play.