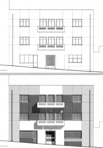
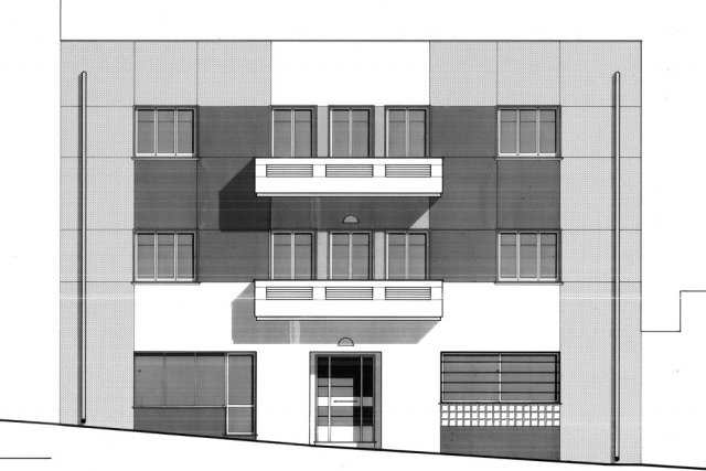
Έργο
ΚΤΗΡΙΑ ΚΑΤΟΙΚΙΩΝ
ΑΝΑΚΑΤΑΣΚΕΥΗ ΚΤΗΡΙΟΥ ΔΥΟ ΚΑΤΟΙΚΙΩΝ ΣΤΟ ΜΕΤΣ
Join
William Hill Poker
nad play.